Project Portfolio
Project information
- Category: Architecture and Interiors
- Client: Insight Global Evergreen (NELSON)
- Project date: July 2024 - Mar 2025
Insight Global Evergreen Office Interiors Renovation
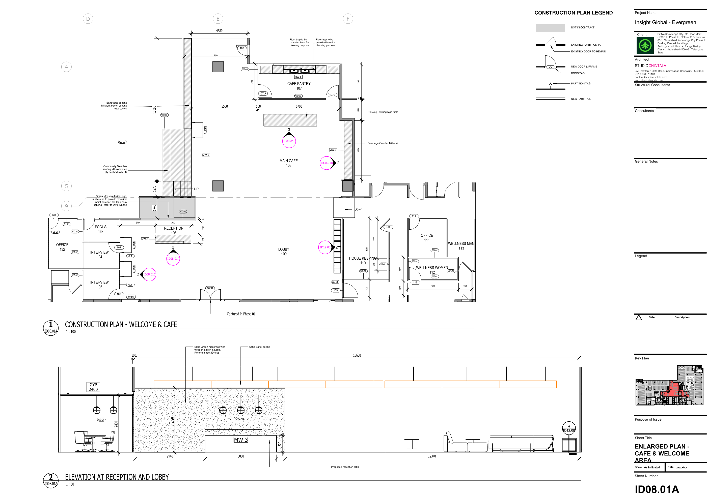
                Studio Chintala, in partnership with Nelson Worldwide, delivered interior design and fit-out services for IG Evergreen’s new office at Sattva Knowledge City, Orwell. The office, located on Level 7, was formerly occupied by Goldman Sachs and required extensive modifications to align with the client’s specifications and brand identity.
				
				Key enhancements included the design of a new bleacher seating area and an expanded cafeteria to accommodate the entire workforce for meals. The project also introduced several branding elements, a dedicated value wall, an enlarged UPS room, acoustic treatments with baffle ceilings, and a variety of new collaboration and meeting spaces.
              
 
     
					 
					 
					 
					 
					 
					